引言
板框壓濾機是醫藥、食品、化工、飲料等行業廣泛使用的一種重要過濾設備。我廠生產的BYL型不銹鋼板框壓濾機,該產品中的濾網是一個重要零件。濾網不僅用來支承濾紙,而且濾液是靠加壓通過濾紙的,所以它還承受一定的壓力,因此濾網必須具備一定的強度和剛性。同時,濾網要讓濾液通過,必須具備大量的孔,以取得最大程度的過濾面積,這樣使濾網的設計和制造工藝變得十分復雜和重要。

2新型濾網的設計
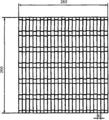
一般的壓濾機由于制造工藝的限制采用薄板加工圓孔,要加大過濾面積必須多加工圓孔,但多加工圓孔就削弱了薄板的剛性。這種方法無法同時顧及過濾面積和剛性。為了解決這個問題,設計了網眼濾網,使過濾面積和剛性兩全其美,由于網眼是剪裂開的一段段小條壓彎而成,沒有去掉板材,因此剛性好,而且過濾面積遠大于前者,使壓濾機過濾量達到較髙水平。網眼濾網結構如圖1所示。
3新型濾網的加工
通常,濾網的制造工藝是利用沖床和專用模具手工操作,在8=0.5的不銹鋼板上將網眼逐行沖壓,效率低而勞動強度大,網眼主要受剪裁、拉伸和彎曲作用而成型,故濾網板材局部受拉伸變薄,大大影響了濾網的強度,而且工件變形大,廢品率高。
為了改變上述情況,設計和制造一臺R5-260滾網機,利用二組梅花形刀片的相對轉動一次性滾壓成型濾網(見圖2)。
加工設備
R5-260滾網機的設計主要是從圓盤剪床得到啟示,采用二組梅花形圓盤滾剪刀桿,上刀桿由46片刀片和45
個墊圈組成,下刀桿則由46個墊圈和45行片刀片組成。用螺母固定在上下二軸上,安裝時上下刀片和墊圈的位置相對錯開,且保持一定的間隙,徑向間隙在安裝時給以適當的調整。下軸固定,上軸可沿徑向移動,以調整兩力盤中心距。電動機經減速裝置帶動上下刀桿逆向同步相對滾動,將板料一次滾剪成型,并利用刀盤和板料的摩擦力,使板料向前移動,連續工作,如圖2所示。


梅花形刀片的設計
根據濾網的外形與網眼尺寸設計梅花形刀片的幾何尺寸,如圖3所示,整張濾網的長度寬度都為260mm,網眼形狀是半徑為5mm的圓弧、相對兩圓弧高度之和L=6mm,板厚為0.5mm,縱向網目總長為13mmx20行=260mm。根據尺寸260,橫向每行寬3mm,確定刀片厚度B=3mm。
一次滾一張濾網,故刀片數n=260-3=86.7片,留一定加工空間,上下總刀片數為奇數定n=91片,上刀桿45片,下刀桿46片。刀片齒數z=25故刀齒齒間角Q=360°v25=14.4。。刀片分度圓r的確定:根據滾動原理可知網眼上AC等于刀片上以廠為半徑的刀齒間孤長AC。
(3) 刀片材料的選擇和公差要求
考慮到刀片在滾剪過程中受力較復雜,同時刀片受到沖擊,即承受周期性載荷。有一定的振動,但該機使用情況屬間斷操作狀態,故不考慮刀齒的疲勞破壞,而刀齒的刃口鈍化、甚至刀齒折斷是刀具的主要失效形式,故對刀片的要求是刃口鋒利,并且有很高的硬度,而刀具心部應具有較高的機械強度和較高的沖擊韌性。因此材料選用GCrl50熱處理要求為HRC58~62。刀片的寬度應控制在0.04公差范圍內,兩端面不平行度不超過0.012。
(4) 刀片組裝體的設計
刀片組裝體的作用和意義
刀片組裝體是由梅花刀片、墊圈、心軸、鎖緊螺母等組裝而成,下軸固定不變。上軸可以上下調節。工作時兩刀桿作逆向同步轉動。板料從兩刀桿間送入。刀片組裝體采用組裝形式,而不采用整體制造。主要考慮到其中某一部分刀片損壞時可進行更換。如釆用整體形式制造,只要其中一個齒發生破損,整條刀片組裝體就報廢。

刀片間隔的調整
軸向間隔主要靠零件(刀片和墊圈)的加工精度保證。此間隔由安裝刀片時調整。為保證每對刀片和墊圈厚度一致,將刀片和墊圈各由小到大排列,然后編號,按序號單號組成一刀桿,雙號組成一刀桿。徑向間隔主要靠上刀桿徑向移動,調節中心距來獲得。中心距:5=2×54.45-5=103.9(mm)
小結
經實際加工證明,使用本設備后,工效提高20?30倍,加工成本大幅降低,質量穩定可靠,廢品率低,徹底解決了濾網的制造工藝性問題。
技術:18851718517
郵箱:suton@su-ton.com
板框廂式隔膜壓濾機

