引言
在現代化工業中,板框式壓濾機是一種將固液分離設備,通過壓力將物料中的液體進行壓出。是由濾板、濾框排列構成濾室,將物料通過壓力來過濾。板框式壓濾機工作原理:用強機械力的作用下,將濾板之間形成過濾室,將物料輸送在一定數量排成一列的濾板間,物料在強大的機械力下送入濾室,物料中固體部分被過濾介質(如濾布)過濾形成濾料,液體則排出濾室,從而達到固液分離的目的。該設備廣泛用于各類需固液分離的場所,具有分離效果好、適用范圍廣、操作簡易、投入資金少等優點。
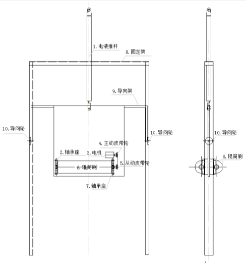
板框式壓濾機內部結構
板框式壓濾機結構簡單,操作簡易,穩定,所得濾料含水率低,對物料的適應性強。現在板框式壓濾機基本采用電液推桿方式來對壓濾機壓緊,然后進行進料的操作了,當排液口無液體排除時,濾室內物料已經完全無液體,無液的物料充滿形成濾料。濾料形成后,通過電液推桿松開濾板,工人通過拉動每一塊濾板卸下濾料,或讓濾料自行脫落至收集裝置,但由于濾料通過高壓形成,易粘結在濾板或濾布上,只能通過人工清鏟進行分離,同時工人需清理殘留在密封面處的濾料,防止濾料清理不干凈而殘留在密封面,對壓濾機的密封性能產生影響影響,產生滲漏現象。這樣就需浪費大量的人力、物力和時間,無法持續運行,遠遠滿足不了發生現代化快節奏的生產。
解決板框式壓濾機的濾板清掃,并通過自動遠程操作完成對濾板的清理,減少人力、物力和時間的改進顯得尤為重要。板框式壓濾機的自動清掃裝置主要立足在板框式壓濾機的本體上進行增加自動清掃裝置進行清理,無需對現有的壓濾機主體結構進行變動,改進的清掃裝置具有成本低、改造工程的工作量少、自動清掃的時間少、操作的人力少等多種優越性。
板框式壓濾機的改造
板框式壓濾機的自動清掃裝置改造內容包括;①電液推桿、②軸承座、③電機、④主動皮帶輪、⑤從動皮帶輪、⑥滾筒刷、⑦軸承座、⑧固定架、⑨導向架、⑩導向輪等組成。工作原理為電液推桿1推動導向架上下運行,電機3運轉啟動,通過傳送皮帶來帶動滾筒刷旋轉,滾筒刷的旋轉將濾板上的濾料進行清理。
為了將改造的成本降到最低,所有的備件材料均采用現場可收集到的備件材料或庫存備件材料,同時為確保備件材料將來更換的互換性,所有的備件材料的易損件均為標準件或成品。固定架8根據板框式壓濾機的寬度及清掃裝置的運行行程確定安裝外形尺寸,采用鋼結構焊接制作而成,同時將固定架固定在板框壓濾機板框移動夾置器上,通過板框移動夾置器的移動來調整清掃裝置的工作位置。電液推桿1采用分體式電液推桿,同時在考慮到自動清掃裝置自重較輕及清掃速度的情況下,采用推力1噸,速度為50mm/s,行程符合板框清理要求。同時在考慮分體電液推桿在運行中的受力因素,在固定架上部槽鋼預留安裝孔,將電液推桿通過安裝孔固定好,電液推桿的前端與導向架采用絞軸式連接。分體式電液推桿不但減少了整套板框式壓濾機自動清掃裝置的重量,同時方便維修及保養,一旦出現故障只需更換缸體或分體油泵,無需成套更換,大大降低了維修難度和成本。
導向架9在充分考慮整體鋼結構的受力及使用情況,根據現有的材料情況,采用鋼結構焊接而成,在出現不可預測的變形或損壞后,后期的維修只需將變形或損壞的部分鋼結構進行更換焊接即可,維修程度將非常方便可行。
導向輪10為了能和導向架良好的配合,可采用自主設計的加工件,由于導向輪的行走速度較慢,受力較小,轉動部位選擇安裝滾動軸承,在兩端軸承壓蓋部位設計安裝迷宮式防塵蓋,同時設有加油孔,加油孔采用通用的M10加油嘴,以便與其他加油設施通用。
電機3經綜合計算力矩和考慮更換性,采用0.37kW的4極電機,1440r/min的轉速完全可以滿足滾筒刷清理板框的需求,后期如需加快清理的周期,可將電機更換成0.37kW的2極電機,2980r/min的速度可將清理時間縮短將近一半。反之,如需降低清理的速度,可將電機更換成0.37kW的6極電機,720r/min的速度可將清理時間延長一倍。
板框式壓濾機應用效果分析
滾筒刷6采用專業滾刷成品,刷絲采用優質耐磨刷絲,刷絲采用注塑連接,不易脫落,耐酸堿及腐蝕,刷絲濃密并柔軟,不能在清理過程中損壞濾布或板框,滾筒刷滾軸采用304不銹鋼制作。滾筒刷兩側采用滾動軸承安裝,軸承座上設有加油孔,加油孔采用通用的M10加油嘴,以便與其他加油設施通用。
當壓濾機完成一個周期的物料壓濾后,夾置器打開板框時,通過控制壓濾機的主行程電液推桿的行程,控制兩板框之間的距離。在兩板框之間距離能滿足自動清掃裝置的工作空間后,停止壓濾機主行程電液推桿,將固定架對準板框間的中心位置,啟動滾筒刷電機3,電機帶動主動皮帶輪4運行,滾筒刷6在傳動皮帶的傳遞下進行旋轉(兩臺滾筒刷接觸板框濾布的兩個面),通過滾筒刷的旋轉滾動將解除的濾料進行清理。
同時電液推桿1向下緩慢移動,在強大的推力推動下,導向架從上至下運動,旋轉的滾筒刷在電液推桿的作用下逐步向下移動,對兩側的濾板進行清理。在滾筒刷運行的最低位置的兩側設置接觸限位開關,當導輪接觸限位開關電液推桿停止向下行程,完成第一次的清理工作。

為確保濾板清理干凈,在接觸限位開關作用后,如發現對濾板再次清理,只需啟動滾筒刷電機3,電機帶動主動皮帶輪4運行,滾筒刷6在傳動皮帶的傳遞下進行旋轉(兩臺滾筒刷接觸板框濾布的兩個面),電液推桿1向上緩慢移動,在強大的回收力作用下,導向架從下至上運動,旋轉的滾筒刷在電液推桿的作用下逐步向上移動,對兩側的濾板進行清理,在滾筒刷的旋轉作用下,將兩面濾布上的濾料清掃干凈。如檢查發現濾板上仍殘留濾料,可在控制臺操作,反復將電液推桿進行伸縮,對兩側濾板多次進行清理,直至濾板清理干凈。

圖2板框式壓濾機結構圖
傳統的人工清理一臺板框式壓濾機,需耗費四工人將近四個小時完成對濾板的清理,清理的效果因人為因素而存在不可控制情況。而板框式壓濾機的自動清掃裝置實現一工人半個小時內完成清理工作,清理的效果由于為機械化自動操作而遠遠優于人工清理效果,大大降低了工人的勞動強度,提高了設備的操作自動化,同時縮短了清理時間,節省出的時間可增加板框壓濾機的工作循環周期,增加壓濾機的工作能力。
結語
板框式壓濾機自動清掃裝置實現了安裝便捷,安全可靠,自動化操作簡單,清理效果好。具有結構簡單、安裝簡便、清理效果直觀、成本低,可適用于各類板框壓濾機的使用。改造的板框式壓濾機自動清掃裝置制作簡單,所有的備件材料均為日常生產所需的,在備件材料損耗后,可在最短的時間里找到替代的備件材料進行維修或更換,運行成本低,目前使用效果良好。
歡迎來電咨詢,技術交流,來料實驗。
咨詢:188517-18517
板框廂式隔膜壓濾機

